By Ellie Ruel
Áakʼw Tá Hít has created a new science hub on the oceanside of Juneau’s UAS campus.
“It’s been a long time coming,” said Dr. Eran Hood, UAS Professor of Environmental Science. Hood is teaching and conducting research in the new environmental science building this semester.
“I mean, we’ve been asking for a building for well over a decade, and so it’s really nice that it finally came together for us,” Hood said.

Ribbon cutting at Áakʼw Tá Hít’s grand opening ceremony on Sept. 20 (Photo: Suella Wendell)
Consolidating natural sciences labs and offices has been on the table since 2012, according to a 2018 Juneau Empire interview with former UAS Vice Chancellor Micheal Ciri. Development began in 2016, and site preparation was completed in 2019. Construction started in 2022 after being stalled by the COVID-19 pandemic. The project cost around $16.1 million, with funds coming from the university budget, the sale of the UAS bookstore, and building renewal reserves, which fund periodic construction updates on campus. Classes were well underway when UAS celebrated the grand opening of the building on Sept. 20.
House at the Head of Áak’w Bay
Áakʼw Tá Hít symbolizes bridging the gap between Western science and Indigenous knowledge, facilitating new approaches to studying Alaska’s changing climate. At the ceremony, UAS Chancellor Aparna Palmer said innovation occurs when different disciplines are brought together in unique ways.
Áakʼw Tá Hít means House at the Head of Áak’w (Bay) in Lingít. It is the first building on the Juneau campus to bear a primary name in an Indigenous language.

Seikoonie Fran Houston speaks at the Áakʼw Tá Hít grand opening ceremony on Sept. 20 (Photo: Suella Wendell)
At the building’s grand opening, Áakʼw Ḵwáan tribal spokesperson Seikoonie Fran Houston noted that her ancestors were the first to settle in the Auke Bay area of the Juneau region.
Thunderbird House leader Yaanishtuk Mike Tagaban said his ancestors fished off the point.
“And we catch our fish, and we’d study how the fish were coming back. And that is, I understand, the purpose of this building — part of it,” Tagaban said, thanking the university for investing in learning “more about our environment, where our fish comes from.”
The new building is a “beacon for environmental leadership grounded in the unique ecosystems and rich cultural heritage of Alaska,” according to Interim Provost Carin Silkatis, who was intimately involved in the project from construction to completion.
Connections
Áakʼw Tá Hít opens directly to Southeast Alaska’s natural landscape. That interconnection is reflected in the building’s design.
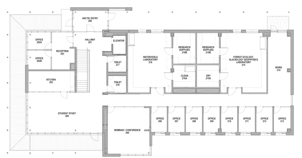
The main entrance leads to a study lounge featuring floor-to-ceiling windows. On the right are two offices and a kitchen. The hallway on the left holds a conference room, eight faculty offices, the water/soil laboratory, and the forest ecology, glaciology, and geophysics laboratory. A field research staging area, freezers, and a scuba room with wet and dry areas are downstairs. The lower entrance opens directly to the beach, facilitating direct water access. The lower floor also contains the building’s only classroom, which seats approximately 40 students.


Áakʼw Tá Hít upper and lower floorplans
The building’s study area fills a much-needed gap for science students. Previously, the only open-use study area was located in the Anderson Building, which is next to Áakʼw Tá Hít. The Anderson lounge is a tight space with little seating or natural light. If students wanted a better place to work on assignments between classes, they’d have to cross Glacier Highway to the main campus.
Áakʼw Tá Hít’s first-floor classroom has a glass wall. Its study lounge features floor-to-ceiling windows overlooking Auke Bay. From the balcony, you can see surrounding mountains and Admiralty Island.

View from Áakʼw Tá Hít’s balcony on Nov. 20
Environmental science major Macy Tolley said the new study lounge is one of her favorite places on campus.
“I feel so lucky to have arrived (at UAS) when I did and am able to utilize this beautiful building every day. It also just goes to show the value they place in furthering environmental science education here at UAS,” she said.
The new building better connects an already small community of UAS environmental majors, said Alyson Kenney, a senior environmental resources major.
“I think it facilitates more group learning because we have a bigger space, so there’s just more opportunity for engagement between students during classes,” she said.

Áakʼw Tá Hít’s study lounge on Dec. 6
The Anderson Building is home to UAS biology programs and together the two facilities provide a hub for science classes.
Dr. Brian Barth, a chemistry professor who teaches in the new building, noted the convenience of having most science classes on the same side of campus. “It’s better for the students, it’s better for the faculty, it’s a better overall scenario,” he said.
The new building is significant to environmental science majors.
Environmental Science Professor Hood noted how disconnected students of the environment were before having a place to study and gather. He said it was difficult to involve them in research when labs used to be a mile away from main campus and faculty offices.
“We had a classroom, but, you know, everything was in a different place,” Hood said.
And the view? Barth compares it to a live eagle cam. “It’s a very UAS-specific learning experience,” he said.
While the deck is easy access to the scenery, sophomore Keeley Rielly said when the sun is out, Áakʼw Tá Hít is a huge draw for her.
“Anywhere that I can find sunlight on this campus, I’m like, this is a great place,” Rielly said.

Leave a comment